1322 HUNTINGTON CourtAuburn, AL 36830




Mortgage Calculator
Monthly Payment (Est.)
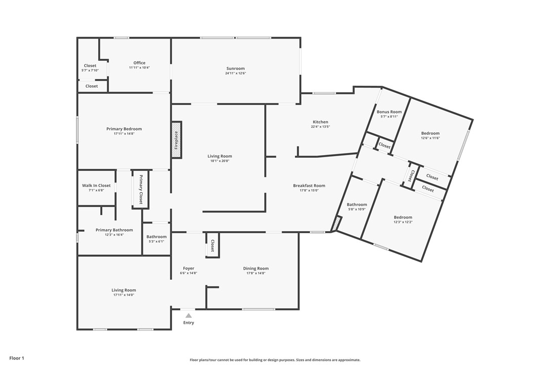
$2,783Welcome home to 1322 Huntington Court in everyone's favorite neighborhood, Burke Place. This one-level home has a spacious floorplan with lots of windows and a wonderful amount of storage. It sits in a cul-de-sac with privacy along the back of the lot with trees which adds to the serenity of the space. Peaceful and quiet are the words to describe the location. The floor plan offers something for everyone in the family - from a living room that could be a music or media room, to a large great room with bookcases and fireplace, sunroom to enjoy a quiet afternoon and an office/hobby room. The Burke Place neighborhood is convenient to downtown and grocery shopping and has a community pool with picnic tables - sure to become a favorite spot during the summer. This quiet neighborhood that is tucked away from the business of the area is also a favorite walking trail along with the wide sidewalk along Annalue. Notes: Seller needs to close after Thanksgiving, 2025. Roof was replaced in 2012, HVAC (two units) replaced in 2014 and 2023, hot water heater replaced in 2014. Vacuum system sold as-is. Freezer in pantry does not convey. Separate Irrigation meter. 24 hour notice to show.
| 2 months ago | Status changed to Pending | |
| 2 months ago | Listing updated with changes from the MLS® | |
| 3 months ago | Listing first seen on site |
Listing information is provided by Participants of the Lee County Association of Realtors MLS. IDX information is provided exclusively for personal, non-commercial use, and may not be used for any purpose other than to identify prospective properties consumers may be interested in purchasing. Information is deemed reliable but not guaranteed. Copyright 2025, Lee County Association of Realtors MLS.
Last checked: 2025-11-04 09:12 PM UTC
Did you know? You can invite friends and family to your search. They can join your search, rate and discuss listings with you.