40 SUMMER StreetOpelika, AL 36804




Mortgage Calculator
Monthly Payment (Est.)
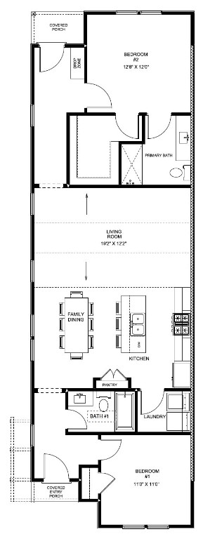
$1,228New Designer Townhome in Firefly! Estimated completion in March 2026! This Townhome is an exterior two bedroom, two bath home comprising of 1,184 square feet. The covered front entry leads you inside the foyer with the guest bedroom and bathroom access. Past the foyer, is the dining area off of the kitchen. The kitchen extends into an open concept living area that features vaulted ceilings. The kitchen boasts stainless steel appliances, granite countertops and custom designed wooden cabinets. There is ample room for storage with an attached pantry and closets lined with wire shelving in both bedrooms and laundry room. Down the hall is the primary bedroom with ensuite and closet accessed from the bedroom. Future amenities to include swimming pool, clubhouse, pickle ball courts, playground, bocce ball, community garden, dog park, walking trail, wiffle ball field, and green space.
| 6 days ago | Price changed to $269,140 | |
| 6 days ago | Listing updated with changes from the MLS® | |
| a month ago | Listing first seen on site |
Listing information is provided by Participants of the Lee County Association of Realtors MLS. IDX information is provided exclusively for personal, non-commercial use, and may not be used for any purpose other than to identify prospective properties consumers may be interested in purchasing. Information is deemed reliable but not guaranteed. Copyright 2025, Lee County Association of Realtors MLS.
Last checked: 2025-11-05 04:06 PM UTC
Did you know? You can invite friends and family to your search. They can join your search, rate and discuss listings with you.