1290 CENTERPORT Road 5Dadeville, AL 36853




Mortgage Calculator
Monthly Payment (Est.)
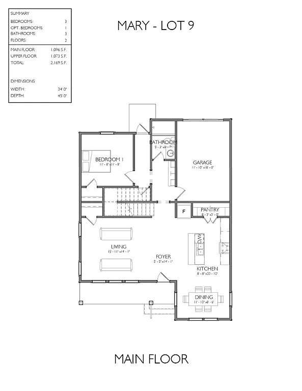
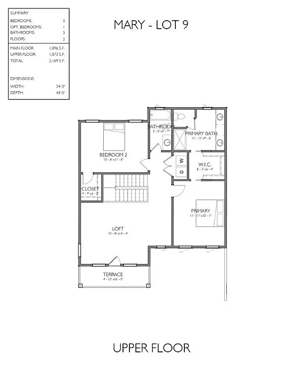
$3,139Up to $10K in Builder Incentives for a Limited Time only! Welcome to The Mary – a stunning new home at Lake Martin, where modern lakeside living meets timeless comfort and style. This brand-new 3-bedroom, 3-bathroom, two-story lakeview home is designed to offer the perfect balance of relaxation and functionality. Enjoy a spacious open-concept layout, ideal for entertaining, with a large kitchen that seamlessly flows into the living and dining areas. Expansive windows fill the space with natural light while offering breathtaking views of the lake. The split-bedroom design provides privacy for family and guests, while the owner’s suite boasts a walk-in closet and a luxurious ensuite bathroom. Located in The Edges at Blue Creek, this home is just minutes from a conveniently located boat ramp, giving you easy access to all the fun and beauty Lake Martin has to offer—from boating and fishing to unforgettable sunset views. Highlights Include: -Close Proximity boat ramp to Lake Access -Low-Maintenance New Construction -Ideal as a Weekend Retreat or Full-Time Residence -Short term eligible -Located just minutes from all things Lake Martin
| 2 months ago | Listing first seen on site | |
| 2 months ago | Listing updated with changes from the MLS® |
Listing information is provided by Participants of the Lee County Association of Realtors MLS. IDX information is provided exclusively for personal, non-commercial use, and may not be used for any purpose other than to identify prospective properties consumers may be interested in purchasing. Information is deemed reliable but not guaranteed. Copyright 2025, Lee County Association of Realtors MLS.
Last checked: 2025-12-21 10:07 AM UTC
Did you know? You can invite friends and family to your search. They can join your search, rate and discuss listings with you.