6804 BRAMBLE LaneAuburn, AL 36830


Mortgage Calculator
Monthly Payment (Est.)
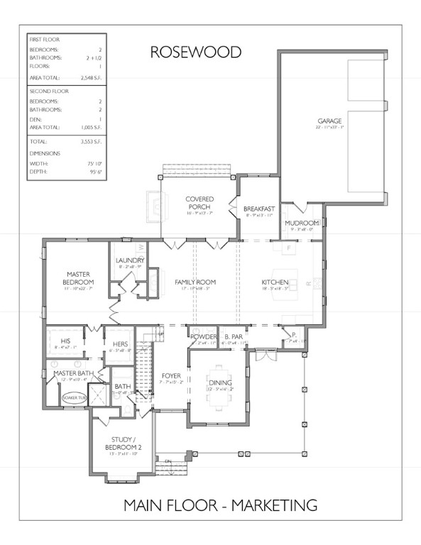
$5,931Impressive design and coveted privacy are hallmarks of Dilworth Residential and Glenwood Farm! This Sought after location offers a 3.43 acre serene setting and Charming Proposed Home built by Dilworth Residential. Convenience is also key as it is just minutes from the Heart of Auburn, I85 and Tiger Town! The Home Plan features Front Porch living that wraps to the Formal Dining Room w/French Door detail providing easy access from the Kitchen.Gourmet Kitchen w/ large Breakfast Bar, SS Appl, walk-in pantry & cozy breakfast nook that opens to the covered porch & fireplace. Located on the main level is the Primary Suite & offers a spa-like retreat w/ a freestanding soak-in tub & separate walk-in shower. En Suite Bedroom 2 is also on the main level. En Suite Bedroom 3 & 4 are on level 2 plus a spacious bonus room.The home plan is complete w/ mudroom and 3 car garage!This residence will provide regal entertainment spaces, luxury amenities along w/lush landscaping & exceptional outdoor living!
| 4 months ago | Listing first seen on site | |
| 4 months ago | Listing updated with changes from the MLS® |
Listing information is provided by Participants of the Lee County Association of Realtors MLS. IDX information is provided exclusively for personal, non-commercial use, and may not be used for any purpose other than to identify prospective properties consumers may be interested in purchasing. Information is deemed reliable but not guaranteed. Copyright 2026, Lee County Association of Realtors MLS.
Last checked: 2026-03-20 02:59 AM UTC
Did you know? You can invite friends and family to your search. They can join your search, rate and discuss listings with you.