1400 HOMESTEAD DriveAuburn, AL 36830




Mortgage Calculator
Monthly Payment (Est.)
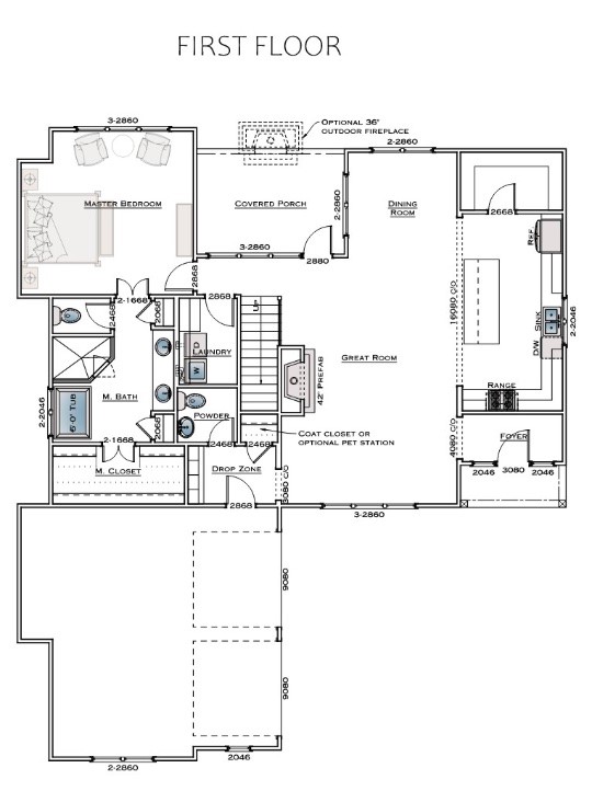
$2,652Move into your dream home this AUGUST with the Henry! This 5 bedroom, three and a half bathroom, 3,015 square foot home is a spacious 2-story home featuring an open great room with electric fireplace, large dining area, and a chef’s kitchen with oversized island and walk-in pantry. The main-level primary suite offers a luxurious bath with soaking tub, separate shower, double vanity, and a generous walk-in closet. A covered porch extends the living space outdoors. Additional conveniences include a dedicated laundry room, powder bath, and a functional drop zone off the garage. Upstairs includes four additional bedrooms, two full baths, and a large loft perfect for a second living area, playroom, or media space. Well-designed with thoughtful storage throughout, this floorplan blends comfort, flexibility, and modern living. Future community amenities include a pool, pavilion, pickleball courts, bocce ball, playground, and a community fire pit.
| 15 hours ago | Price changed to $581,181 | |
| 15 hours ago | Listing updated with changes from the MLS® | |
| 2 months ago | Status changed to Active | |
| 2 months ago | Listing first seen on site |
Listing information is provided by Participants of the Lee County Association of Realtors MLS. IDX information is provided exclusively for personal, non-commercial use, and may not be used for any purpose other than to identify prospective properties consumers may be interested in purchasing. Information is deemed reliable but not guaranteed. Copyright 2026, Lee County Association of Realtors MLS.
Last checked: 2026-03-20 07:25 AM UTC