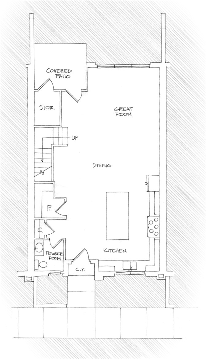
1316 VINTAGE DriveAuburn, AL 36830




Mortgage Calculator
Monthly Payment (Est.)
$3,144In keeping with the neighboring buildings, these townhomes are city loft inspired with the ease of an active community. Location and close proximity to a newly developing restaurant with an award winning chef, an incredible furniture/furnishings retailer, a brand new extraordinary shoe store, these townhomes make an excellent investment in everyday, convenient living or a Game Day/Auburn home. Professionally designed for today's professional or smart investor, the finishes on each unit are top of the line. Our designers have curated furnishings have been selected for the turnkey buyer and are available for additional services as needed. For info on selections and furnishings, visit www.vintageeastauburn.com List price is for interior unit and current design/selections. Contact agent for information.
| a week ago | Status changed to Active | |
| a week ago | Price changed to $689,000 | |
| a week ago | Listing updated with changes from the MLS® | |
| 2 weeks ago | Listing first seen on site |
Listing information is provided by Participants of the Lee County Association of Realtors MLS. IDX information is provided exclusively for personal, non-commercial use, and may not be used for any purpose other than to identify prospective properties consumers may be interested in purchasing. Information is deemed reliable but not guaranteed. Copyright 2026, Lee County Association of Realtors MLS.
Last checked: 2026-03-20 05:51 AM UTC