57 COPPER MEADOWS DriveAuburn, AL 36830




Mortgage Calculator
Monthly Payment (Est.)
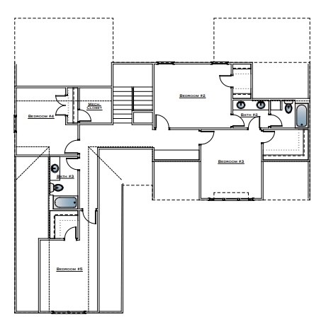
$2,681Are you looking for the perfect home to customize, move in this October & grow with capabilities of effortless entertaining? Look no further, The Holly, 5 bedroom, 3 and a half bathroom, 3,216 square foot home offers a thoughtfully designed two-story layout that blends everyday functionality with elegant living spaces. The first floor features a private primary suite tucked away for a quiet retreat, complete with a spacious ensuite bath, walk-in closet, and convenient access to the laundry room and drop zone. The heart of the home showcases an open-concept kitchen, dining, and great room, anchored by a large island and walk-in pantry—ideal for hosting and daily living alike. A welcoming foyer leads to a flexible front flex room, perfect for a home office, playroom, or formal sitting area. Enjoy seamless indoor-outdoor living with a covered back porch, creating the perfect space for relaxing or entertaining year-round. Upstairs, you’ll find four generously sized bedrooms, thoughtfully arranged for privacy and comfort, along with two full bathrooms and a centrally located homework/tech center—perfect for studying, remote work, or creative projects. The layout provides both shared and private spaces, giving everyone room to spread out while staying connected. With smart flow, ample storage, and versatile living areas, the Holly A is designed to grow with your lifestyle—offering comfort, style, and functionality in every square foot. Future community amenities include a pool, pavilion, pickleball courts, bocce ball, playground, and a community fire pit.
| yesterday | Price changed to $587,622 | |
| yesterday | Listing updated with changes from the MLS® | |
| 2 weeks ago | Status changed to Active | |
| 2 weeks ago | Listing first seen on site |
Listing information is provided by Participants of the Lee County Association of Realtors MLS. IDX information is provided exclusively for personal, non-commercial use, and may not be used for any purpose other than to identify prospective properties consumers may be interested in purchasing. Information is deemed reliable but not guaranteed. Copyright 2026, Lee County Association of Realtors MLS.
Last checked: 2026-03-20 07:25 AM UTC